Tous les forums
aménagement cabinet
06/10/2009 à 19h34
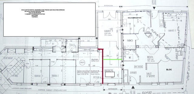
Je reprends le sujet de mac car nous allons récupérer un bout de local attenant au notre dans trois mois et je commence à réfléchir aux modifications envisageables .
j'ai tracé sur le plan une ligne rouge sur la partie séparative entre les deux locaux créée il y à trois ans .
nous récupérons le local architecte complet (que j'avais acheté il y à trois ans puis loué en attendant son départ à la retraite).
dans cette nouvelle partie je souhaiterai faire un vestiaire, une salle de debriefing, un cabinet hygiène motivation , un bureau et éventuellement déplacer ma salle de chir de ce coté...
mon problème essentiel reste la circulation dans tout ça
auriez vous cher nonoliens de bonnes idées
06/10/2009 à 20h31
perso je rebondis sur le plan du sous marin et apporte ma petite "note" PCR
tu as conscience que les 2 portes coulissantes des cab devront être plombées 0,5 mm
et que la paroi entre Pano et salle d'attente peut devoir grimper a 1,5 mm ???
et comme il y a pas mal de parois dans ce cab , celles qui séparent les cab des salles voisines doivent aussi integrer 0,5 mm d'Eq Pb
voili voilou
31/01/2010 à 10h49
je reviens à la charge ;)
mark si tu es encore d'accord, je te propose d'essayer de mettre la pano dans la salle de chir qui serait en haut à gauche sur le plan, donc de garder le mur porteur, de virer le mur porteur entre les pièces du bas de faire accueil + bureau et de basculer la salle de soins en haut à droite.
qu'en penses tu?
15/02/2010 à 00h04
salut mac, à la bourre, s'cuse
voilà ce que je crois avoir compris de ta demande
15/02/2010 à 17h21
donc ici on fait sauter un gros mur pour réarranger attente, réception, bureau et stérilisation
on notera une circulation séparée du public pour le praticien et l'assistante, de la réception au coin labo (dépôt des travaux et conditionnement) en passant par: bureau, stérilisation (facultatif) et cabinet de soins
le coin débriefing a disparu
les doubles entrées-sorties du labo, de la sté sont optionnelles, voire même la double circulation côté fenêtres, mais j'aime privilégier cette solution pour si peu que l'on contrôle les allées et venues du public...
peu de rangements, il va falloir un rangement en hauteur au-dessus de la réception, du bureau, du plan de travail de la sté, dans le cabinet et le labo...
j'imagine le bloc aspi-compresseur sous le plan de travail du labo avec un extracteur vers l'extérieur et une prise d'air
l'entrée de la salle d'attente côté entrée et hygiène-wc est un parti pris pour assurer un minimum de confidentialité au patient se trouvant à la réception
figurées en bleu, de nombreuses baies vitrées, au-dessus des quels ou peut tout de même prévoir des meubles haut (très haut?) de stockage ou archives, et des portes coulissantes:
- simples pour sté et labo
- double, façon penderie pour l'accès au bureau depuis réception ou couloir
- double symétrique pour accès au bloc-pano
l'idée est de laisser passer un max de lux, le cas échéant en combinant vitrophanie, verre opalescent ou stores selon les nécessités de discrétion permanente ou temporaire (bloc, bureau, labo etc...)
l'arrondi de la cloison d'attente se prête aux hublots... ;)
l'aquarium peut servir partiellement de cloison à la salle d'attente
le bureau est peu orthodoxe, pour ne pas dire pas catholique, n'ayant rien d'un autel (pourtant Dieu sait quels sacrifices vont y signer les patients...) , mais l'arrondi facilite la circulation autour de celui-ci et rapproche les interlocuteurs...
que dire de plus?
ah oui!
les circulations sont données à titre indicatif: en rose pour l'assistante, vert pour le patient, bleu pour le praticien
enfin, en pointillé, une ébauche de séparation du bloc et du panorex, sous réverve de la possibilité de respecterles dimensions minimum nécessaires pour la pano et selon la taille de la table-pont ou mayo de chir...
je crois savoir que nous n'en resterons pas là.. :)
15/02/2010 à 20h32
Le Choixpeau magique écrivait:
------------------------------
> C'est un scandale, où sont le Sauna et le jacuzzi ???
Ah flûte, je m'ai encore gourré, j'avions compris Cellules et Hammam...
Faut qu'j'arrête, je deviens addict...
Là, je crois que ça devient un peu n'importe quoi au niveau des cotes.
Enfin... je livre et j'attends...
Plus je fais, plus cela me paraît petit.
Des idées pour réduire les passages et caser les pièces avec les fenêtres?
15/02/2010 à 22h01
mark écrivait:
--------------
> Le Choixpeau magique écrivait:
> ------------------------------
> > C'est un scandale, où sont le Sauna et le jacuzzi ???
>
>
> Ah flûte, je m'ai encore gourré, j'avions compris Cellules et Hammam...
>
> Faut qu'j'arrête, je deviens addict...
>
> Là, je crois que ça devient un peu n'importe quoi au niveau des cotes.
>
> Enfin... je livre et j'attends...
>
> Plus je fais, plus cela me paraît petit.
>
oui c'est petit (trop? )
merci à toi en tout cas.
15/02/2010 à 22h29
avec un bloc en forme de tiroir à la morgue on peut caser le sas-repos... ou une baignoire à jets pulsés... :)
ch.... de cotes pour le pano!