Cookie Consent byPrivacyPolicies.comsondage local professionnel - Eugenol

sondage local professionnel

Samy8 mgu6if - Eugenol
oliverKapaspeur

10/05/2010 à 14h27

Salut à tous,
je suis à la recherche d'un local professionnel à acheter pour y faire une création.

Quelle est à votre avis la surface minimale pour y mettre:
1 salle de soins
1 salle de chir
1 pano
1 ste
1 salle d'attente
1WC handicapé
eventuellement 1 bureau.

Merci pour vos réponses.


new_dentist

10/05/2010 à 15h38

Je travaille dans un cabinet de 80 m² environ dans lequel j'ai 1 salle d'attente, un bureau, un accueil, une salle de sté et 2 salles de soins (et quelques placards dans différents endroits).

Je vais modifier l'agencement afin de rajouter une salle dédiée à la pano (actuellement elle est dans une des salles de soins, elle sera déplacée dans une partie de la salle d'attente qui va être scindée en 2/3 (bureau + vestiaires) et 1/3 (salle pano) et l'actuel bureau deviendra la salle d'attente.

Et quand je vois que je dois me contenter de salles relativement petites, je pense qu'il serait préférable d'avoir un plateau de 100 m² plutot pour arriver à agencer les lieux plus facilement.

(Mon local technique est située en dessous, dans la cave)


annesoulac

10/05/2010 à 15h56

je viens de faire construire :
2 salles de soins confortables (16m2 chacune)
salle de sté
"cuisine, vestiaire, stock, bureau" = 1 piece
1 salle pano
1wc handicapé
hall entrée
1 salle d'attente
j'arrive à 115m2
Suis ravie, conditions idéales
seul bémol, j'aurais du penser à faire mettre une douche.


P1060810  800x600  dlavv9 - Eugenol
JAKEZ

10/05/2010 à 17h01

2 cabinets, 1 salle d'attente,grand hall/accueil, pano, sté, wc handicapés, buanderie/archives/stock
100m²

--
Hebken!


Samy8 mgu6if - Eugenol
oliverKapaspeur

10/05/2010 à 17h09

Merci pour vos réponses. J'ai visité un local de 85m2, mais ca me paraissait un peu limite quoique réalisable, mais je suis jeune et j'ai besoin de vos experiences.Merci


Utilisateur banni

10/05/2010 à 17h10

1 cab, bureau, sté, WC handi, WC privé, pano, accueil, attente, vestiaire, salle de repos (mais j'ai pas le tps malheureusement)...92 m2. J'aurais bien aimé 10 m2 de plus.


Marsu n7qyqe - Eugenol
kaol

11/05/2010 à 00h06

je suis installée dans un cabinet de 95 m² comportant :
- 2 salles de soins
- 1 salle de chir
- 1 wc
- salle pano
- salle d'attente
- acceuil
- bureau
- salle de sté
- salle de détente
- salle de stockage


Image001 e0kg9q - Eugenol
clemsdent

11/05/2010 à 01h33

tout cela dans 95 M2 ???

on veut voir le plan, là!

evtl. en MP (?)


Marsu n7qyqe - Eugenol
kaol

11/05/2010 à 15h30

clemsdent écrivait:
-------------------
> tout cela dans 95 M2 ???
>
> on veut voir le plan, là!
>
> evtl. en MP (?)
>



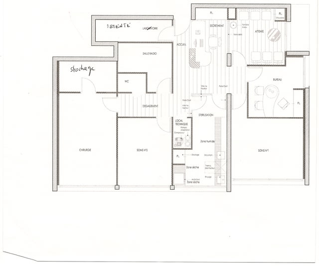
voici les plans

Num risation0004 bhk7hv - Eugenol

Samy8 mgu6if - Eugenol
oliverKapaspeur

11/05/2010 à 16h03

tu peux nous donner la surface des salles de soins et salle de chir?
Merci pour le plan.


Rape p0as4f - Eugenol
rapelapente

11/05/2010 à 16h06

circulations+ locaux publics aux normes handi
2 salles de soins
1 bloc en préparation
1 SA
1 accueil 2 postes
la sté + salle de repos
WC clientèle
Salle de bain /WC perso
vestiaire
local aspi/compresseur
local pano

200 m2, et y'a rien de trop


heron

11/05/2010 à 16h18

Moi, ce que j'aimerai savoir c'est quel est votre loyer mensuel au m2 (hors charges);
En effet dans notre canton nous sommes en train de monter une maison de santé pluridisciplinaire et comme c'est la communauté des communes qui porte le projet, nous aimerions leur donner un "plafond", histoire qu'ils n'abusent pas au niveau des loyers.


Rape p0as4f - Eugenol
rapelapente

11/05/2010 à 16h22

Ah çà c'est tellement variable....
Je suis proprio de mes locaux par une SCI
je facture 2200 /mois ce qui est la moy ici

Si c'est la commune qui fait tes locaux soyez très durs avec eux, ils ont besoin de vous !


heron

11/05/2010 à 16h34

2200 avec ou sans les charges (femmes de ménages, eau...)? Combien tu as de m2 ?

(C'est bien pour être "dur" avec eux qu'on va leur signifier nos tarifs . De toute façon c'est ça ou je m'en vais !)


Rape p0as4f - Eugenol
rapelapente

11/05/2010 à 17h14

C'est le loyer seulement, les charges sont supportées par le cab, les impôts fonciers aussi du reste, mais dans ton cas on s'en moque


Marsu n7qyqe - Eugenol
kaol

11/05/2010 à 21h06

Je suis propriétaire par le biais d'une sci et je me fais un loyer de 1500€ par mois pour 95m².


Marsu n7qyqe - Eugenol
kaol

11/05/2010 à 21h08

oliverKapaspeur écrivait:
-------------------------
> tu peux nous donner la surface des salles de soins et salle de chir?
> Merci pour le plan.


salle chir = 13m²
salle soins 2 = 8m²
salle soins 1 = 12m²


Samy8 mgu6if - Eugenol
oliverKapaspeur

12/05/2010 à 00h28

Merci bcp Kaol.
Si d'autres encore veulent nous faire partager leurs avis, j'en serais ravi.


Grueavatar nptrc9 - Eugenol
Le Choixpeau magique

12/05/2010 à 00h38

kaol écrivait:
--------------
> salle chir = 13m²
> salle soins 2 = 8m²
> salle soins 1 = 12m²

Je crois que 8 m², tu ne peux pas avoir de rétro sauf aménagements spécifiques (comme pour les panos).


Image001 e0kg9q - Eugenol
clemsdent

12/05/2010 à 00h57

oui c'est 9M2 la limite pour la retro-alvéolaire.



Marsu n7qyqe - Eugenol
kaol

12/05/2010 à 01h25

il y a une retro dans chaque salle de soins, apres ce sont des valeurs de surface approximatives...
Et PCR et APAVE sont venus, je pense qu'on me l'aurait signalé avant de me donner mon agrément.


zuka

12/05/2010 à 11h58

chez moi
2 salles de soins
1 pano
1 acceuil
1 sté
1 salle de repos
1 stokage
1 salle d'attente
1 WC patients normes Handi
1 wc perso

le tout dans 100m²
si c'etait à refaire, je trouverais un peu plus grand pour y ajouter une salle de chir et un labo pour faire le platre tranquille.


Mosquitogif zt3c7k - Eugenol
mosquito

12/05/2010 à 12h08

kaol écrivait:
--------------
> Je suis propriétaire par le biais d'une sci et je me fais un loyer de 1500€ par
> mois pour 95m².
>
-----------------------------

il faut préciser aussi ce qu'il y a dans le loyer la SCI peut louer le local quasi nu.
Le loueur prenant à sa charge l'aménagement intérieur avec une durée d'amortissement plus courte ( aménagement c'est aussi électricité ,plomberie,... )


sagito

12/05/2010 à 13h09

moi,on me propose un local de 72m2 a 1300€ de loyer et avec tout l'aménagement intérieur à ma charge
qu'en pensez vous?


Grueavatar nptrc9 - Eugenol
Le Choixpeau magique

12/05/2010 à 13h19

sagito écrivait:
----------------
> moi,on me propose un local de 72m2 a 1300€ de loyer et avec tout l'aménagement
> intérieur à ma charge
> qu'en pensez vous?

Le prix est normal.
Le problème en location quand tu dois faire beaucoup de travaux, c'est la pérennité de ton investissement, perso je ne ferais pas ce choix.


12