Cookie Consent byPrivacyPolicies.comAide à l’aménagement de cabinet - Eugenol

Aide à l’aménagement de cabinet

sousou

19/09/2011 à 16h40

Bonjour,
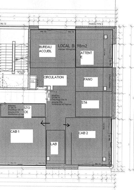
je dois transférer mon cabinet vers un nouveau local pour cause d'expropriation. on me propose ce local dans un immeuble neuf nu sans cloison. sachant que les WC handicapés sont sur le palier, pensez vous que ce plan est valable? et comment l’aménager pour deux fauteuils, salle de radio stérilisation etc..... ce qui me gène dans ce plan c'est la disposition des fenêtres.
Merci

Plan kitrnf - Eugenol

Image001 e0kg9q - Eugenol
clemsdent

19/09/2011 à 23h46

j'ai juste délimité des "zones".
il faut t'orienter par rapport aux fenêtres, placer pano, sté, WC, STock, labo là ou il n'y en a pas.

on voit pas les côtes sur ton plan, et un mur n'est pas visible (est-il avec ou sans fenêtres?).

c'est juste une ébauche, normalement, dans 98M2 tu dois pouvoir y rentrer même 2 fauteuils + bloc et tout le reste (si WC handicapé sur le palier)

mais avec les côtes c'est plus facile.


Plan1 r5ieyf - Eugenol

king_zoulou

20/09/2011 à 00h27

1/3 de la surface pour "bureau/accueil/salle d'attente/circulation", je trouve que c'est du gâchis.


sousou

20/09/2011 à 00h54

clemsdent écrivait:
-------------------
> j'ai juste délimité des "zones".
> il faut t'orienter par rapport aux fenêtres, placer pano, sté, WC, STock, labo
> là ou il n'y en a pas.
>
> on voit pas les côtes sur ton plan, et un mur n'est pas visible (est-il avec ou
> sans fenêtres?).
>
> c'est juste une ébauche, normalement, dans 98M2 tu dois pouvoir y rentrer même 2
> fauteuils + bloc et tout le reste (si WC handicapé sur le palier)
>
> mais avec les côtes c'est plus facile.
>
>
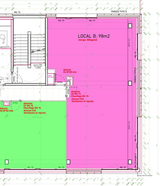
merci clemsdent pour ton plan, mais tu es sorti du cadre, en fait le cabinet1 ne fait pas parti du local qui m'est destiné mais du local attenant. j'ai refait le plan mais en couleur, si ca peut t'aider. merci encore

Proposition de plans individuels nerf5j - Eugenol

Smile beach jgh0a1 - Eugenol
Céramik

20/09/2011 à 01h17

Je trouve cela trop petit...
Tu peux pas avoir 20-25% de plus ?

--
Céramik


sousou

20/09/2011 à 10h08

Céramik écrivait:
-----------------
> Je trouve cela trop petit...
> Tu peux pas avoir 20-25% de plus ?
>
> --
> Céramik

Quand même 100 m², vu le prix au mètre carré (2400 euros HT) nu sans cloison sans rien soit 280 000 euros auquel il faut rajouter l’aménagement, la décoration et le matos.... j'en ai pour plus de 400 000 euros. Plus, ça ferai trop pour moi.


Smile beach jgh0a1 - Eugenol
Céramik

20/09/2011 à 14h31

sousou écrivait:
----------------
> Céramik écrivait:
> -----------------
> > Je trouve cela trop petit...
> > Tu peux pas avoir 20-25% de plus ?
> >
> > --
> > Céramik
>
> Quand même 100 m², vu le prix au mètre carré (2400 euros HT) nu sans cloison
> sans rien soit 280 000 euros auquel il faut rajouter l’aménagement, la
> décoration et le matos.... j'en ai pour plus de 400 000 euros. Plus, ça ferai
> trop pour moi.

C'est très $$$, c'est dans quel coin ?

--
Céramik


003 penrd2 - Eugenol
Cingulum

20/09/2011 à 14h43

utilise Sketch up
http://sketchup.google.com/intl/fr/download/gsu.html

tu pourras meme telecharger des bureau chaise, fauteuil dentaire pour evaluer la place dispo...

100m2 tu fais rentrer 2 salles de soins, un bureau, la pano, un coin labo un bloc et une salle de repos,



--
Dr Cingulum
-----Ancien interné----
----Attaché à l'apex----
http://www.clinic-all.fr/ formation par passion


003 penrd2 - Eugenol
Cingulum

20/09/2011 à 15h33


allez a la va vite...
tu as de la chance j'ai eu un lapin :)

--
Dr Cingulum
-----Ancien interné----
----Attaché à l'apex----
http://www.clinic-all.fr/ formation par passion

Sans titre zo7exe - Eugenol

sousou

20/09/2011 à 15h50

Céramik écrivait:
-----------------
> sousou écrivait:
> ----------------
> > Céramik écrivait:
> > -----------------
> > > Je trouve cela trop petit...
> > > Tu peux pas avoir 20-25% de plus ?
> > >
> > > --
> > > Céramik
> >
> > Quand même 100 m², vu le prix au mètre carré (2400 euros HT) nu sans cloison
> > sans rien soit 280 000 euros auquel il faut rajouter l’aménagement, la
> > décoration et le matos.... j'en ai pour plus de 400 000 euros. Plus, ça ferai
> > trop pour moi.
>
> C'est très $$$, c'est dans quel coin ?
>
> --
> Céramik
C'est à lyon, et pas le meilleur quartier :-((


sousou

20/09/2011 à 15h52

Cingulum écrivait:
------------------
>
> allez a la va vite...
> tu as de la chance j'ai eu un lapin :)
>
> --
> Dr Cingulum
> -----Ancien interné----
> ----Attaché à l'apex----
> http://www.clinic-all.fr/ formation par passion
Merci ça fait une bonne ébauche, et là je trouve que le local est presque trop grand.


Smile beach jgh0a1 - Eugenol
Céramik

22/09/2011 à 03h36

sousou écrivait:
----------------
> Merci ça fait une bonne ébauche, et là je trouve que le local est presque trop
> grand.


Salle attente petite,coin reception aussi, pas de rangement/ stock, aucun espace mini-lab, stérilisation petite...

Tu trouves cela grand ? ou bien tu enlèves un fauteuil...
--
Céramik


n.

22/09/2011 à 14h17

tout cela est bien joli, mais quid de l'accessibilité aux personnes handicapées !

couloirs 1,40 m minimum, idéal 1.5m
zone de giration fauteuil roulant diamètre 1,5 m à prévoir dans toutes les zones accessibles au public
et j'en passe...

IL N'Y A PAS D'"ARRANGEMENT" POSSIBLE AVEC LES COMMISSIONS SUR ACCESSIBILITÉ DE TON LOCAL
Méfies toi, et gardes toi de vouloir rentrer ton programme "aux forceps" dans tes murs, il t'en coutera,

les conseils de professionnels ne constituent pas une dépense superflue, ils ont l'habitude de gerer tout ca

visite le site :
http://www.edic.fr/cabinet-dentaire-conclusion.html

note la place "perdue" dévolue aux dégagements...

je te conseille fortement de t'entourer de gens compétents,

bon vent pour ton projet,


003 penrd2 - Eugenol
Cingulum

22/09/2011 à 14h31

n. écrivait:
------------
> tout cela est bien joli, mais quid de l'accessibilité aux personnes handicapées
> !
>
> couloirs 1,40 m minimum, idéal 1.5m
> zone de giration fauteuil roulant diamètre 1,5 m à prévoir dans toutes les zones
> accessibles au public
> et j'en passe...

Les portes c'est standard et le cabinet 1 est accessible aux fauteuil roulant, le couloir mène a des zones perso privées...
Les toilettes aux normes sont sur le palier d'apres l'initiateur du post...

Pour Ceramik, si il y a un petit coin labo, en face de la sté, et eu as une zone stock tout au bout du local, en face de la pièce a vivre...


--
Dr Cingulum
-----Ancien interné----
----Attaché à l'apex----
http://www.clinic-all.fr/ formation par passion


roger chicot

22/09/2011 à 16h01

Attention normes pour les personnes à mobilité réduite... Accés autonome jusqu'aux toilettes en passant par le pano, la salle d'attente et bien sûr la salle de soins (le fauteil roulant doit passer partout en rotation, ça a changé et les normes sont maintenant incompressibles...

EDIC c'est bien mais il y a aussi CREADESIGN qui sont aussi au top pour des plans finalement pas si chers que ça... vu les idées qu'ils ont... et surtout, les normes sont respectées à la lettre...
Comme ça, pas de soucis pour le contrôle des normes handicapés qui sera fait chez toi aprés travaux...


king_zoulou

22/09/2011 à 16h16

Tu es bien sur de vouloir investir 400 000 euros pour créer DANS lyon ????
Ca me parait un peu suicidaire, d'autant plus que tu as des cantons dans le département avec 1 dentiste pour 10 000 habitants.
http://ars.sante.fr/CartoSante.92758.0.html


n.

22/09/2011 à 19h46

Cingulum écrivait:
------------------

> Les portes c'est standard et le cabinet 1 est accessible aux fauteuil roulant,
> le couloir mène a des zones perso privées...
> Les toilettes aux normes sont sur le palier d'apres l'initiateur du post...
>

les portes standard c'est plutôt entre 75 et 83 cm, dans un ERP5è cat, c'est 90cm, si elles sont placées à moins de 2.50 m de la zone d'émission des rx il faut en plus les plomber, si tu veux un peu d'intimité tu choisiras des portes à âme pleine et un joint phonique :
bref c'est plus vraiment standard

si l'on considère que la porte d'entrée fait 90cm, on détermine un rond de 1.5m assez facilement : celui ci objective les défauts d'accessibilité : ca commence dès le hall d'entrée,

Au delà de cela, mon but n'est de critiquer arbitrairement vos propositions, il faut noter cependant un gros problème de démarche :
on ne dessine pas un cabinet en fonction d'un plan mais d'un programme ; or sousou devrait d'abord nous preciser :
s'il travaille seul avec 1 ou 2 assistantes, s'il compte avoir un collaborateur, si le nombre d'implants qu'il compte poser justifie d'investir dans un bloc ou plutôt d'adapter une des salles de soins

bref je trouve que vous commencez par la fin

je suis d'accord avec roger chicot

PS je viens de faire construire un cabinet (le deuxième) et j'ai pu noter à quel point les commissions sont tatillonnes




sousou

23/09/2011 à 17h54

n. écrivait:
------------
> tout cela est bien joli, mais quid de l'accessibilité aux personnes handicapées
> !
>
> couloirs 1,40 m minimum, idéal 1.5m
> zone de giration fauteuil roulant diamètre 1,5 m à prévoir dans toutes les zones
> accessibles au public
> et j'en passe...
>
> IL N'Y A PAS D'"ARRANGEMENT" POSSIBLE AVEC LES COMMISSIONS SUR ACCESSIBILITÉ DE
> TON LOCAL
> Méfies toi, et gardes toi de vouloir rentrer ton programme "aux forceps" dans
> tes murs, il t'en coutera,
>
> les conseils de professionnels ne constituent pas une dépense superflue, ils ont
> l'habitude de gerer tout ca
>
> visite le site :
> http://www.edic.fr/cabinet-dentaire-conclusion.html
>
> note la place "perdue" dévolue aux dégagements...
>
> je te conseille fortement de t'entourer de gens compétents,
>
> bon vent pour ton projet,

Merci, Déjà tout l'immeuble est prévu pour l’accès handicapé ainsi que les WC sur le palier.
Je vais consulté les pan sur le site.

Merci beaucoup


sousou

23/09/2011 à 17h58

king_zoulou écrivait:
---------------------
> Tu es bien sur de vouloir investir 400 000 euros pour créer DANS lyon ????
> Ca me parait un peu suicidaire, d'autant plus que tu as des cantons dans le
> département avec 1 dentiste pour 10 000 habitants.
> http://ars.sante.fr/CartoSante.92758.0.html

Je ne vais pas créer, je vais transférer ma clientèle. Mais ça fait toujours beaucoup d'argent à investir surtout en ces temps difficile.............


003 penrd2 - Eugenol
Cingulum

23/09/2011 à 19h49

cot
>
> PS je viens de faire construire un cabinet (le deuxième) et j'ai pu noter à quel
> point les commissions sont tatillonnes
>
>
>

Et quelle commission ?
J'ai crée mon cabinet, je l'ai réalisé avec les normes techniques, mais j'ai jamais vu une commission...Ni aucun document a remplir pour déclarer le plan...

Tout n'est pas obligatoirement accessible au personne handicapé.
Si le bureau et une salle de soin le sont, je vois pas en quoi le bloc, la partie commune, ou le cabinet 2 le serait... ?

Pour les portes, si l'on met des portes coulissantes, on gagne beaucoup de place...

Le local pano est par définissions a la dimension car il fait 1.5*2m...

Après pour l'entrée il y a des gaines techniques de chaque coté, apparemment dans un local neuf, donc soumis au normes d'accessibilité...

J'ai un cabinet accessible aux handicapés. (j'ai eu 1 fauteuil roulant en 5 ans...)
Je dis pas que les normes ne sont pas a respecter.. au contraire...
Mais comme pour la radioprotection tout le monde qui gravite autour de nous en profites pour saler les factures des travaux, en en rajoutant souvent bien plus qu'il n'en faut... en jouant sur notre ignorance



--
Dr Cingulum
-----Ancien interné----
----Attaché à l'apex----
http://www.clinic-all.fr/ formation par passion


sousou

27/04/2012 à 17h00

C'est encore moi,
on m'a modifier mon plan d'installation, maintenant j'ai 105 m² au lieu de 987 m² au départ. les WC pour handicapés sont toujours sur le palier. la porte d'entrée je peux la mettre où je veux. la grande longueur c'est 15 m et la largeur c'est 8 m. la responsable me demande l'emplacement des fauteuil afin de mettre les évacuations dans la dalle qui va être coulée sous peu. j'ai fait une ébauche(avec paint je n'arrive pas avec sketchup). evidement les cloisons ne sont pas exactement au bon emplacement. c'est juste pour avoir votre avis général sur la disposition et la circulation générale. Merci

Cabinet1 ydw5ey - Eugenol
Plan ozqm6x - Eugenol

Accenteur kszkki - Eugenol
brindacier

27/04/2012 à 19h30

Bien d'accord. Et plus haut en Sud Bourgogne on gagne sa vie deux mois après avoir ouvert son cabinet.

king_zoulou écrivait:
---------------------
> Tu es bien sur de vouloir investir 400 000 euros pour créer DANS lyon ????
> Ca me parait un peu suicidaire, d'autant plus que tu as des cantons dans le
> département avec 1 dentiste pour 10 000 habitants.
> http://ars.sante.fr/CartoSante.92758.0.html


RépondreCiter