Cookie Consent byPrivacyPolicies.comamenagement local - Eugenol

amenagement local

BZ

28/01/2012 à 13h09

Bonjour à tous,

après des mois de recherche et quelques découragements, j'ai fini par trouver un local pour y transférer mon cabinet.
Après 20 ans d'exercice, cela va me permettre de me remotiver, mais surtout d'envisager plus sereinement le passage aux normes handicapés.

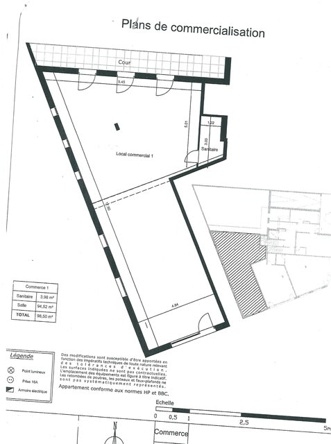
C'est un local au RDC, avec accès indépendant du reste de l'immeuble, mais c'est surtout un immeuble neuf, pas encore construit, et donc avec la possibilité d'adapter l'aménagement intérieur selon mes besoins ( jusqu'à un certain point bien sûr ).

J'aimerais bien avoir l'avis des spécialistes d'entre vous, et de tous ceux qui veulent en donner d'ailleurs, sur mon premier projet afin de ne pas faire de bétises.
Pour info, nous sommes 2 associés.

Merci d'avance.

Local brut jf8bpx - Eugenol

tarski

28/01/2012 à 19h59

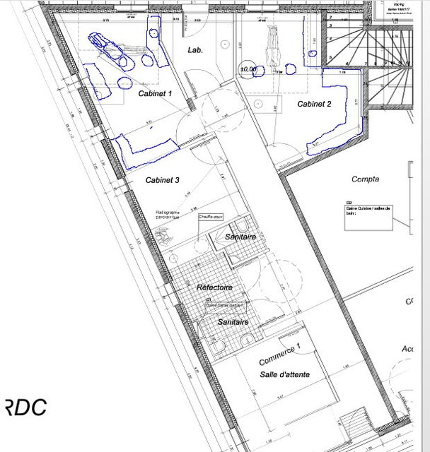
sacré forme du cab !

Le cab 3 = salle pano, n'est pas trop grand ? Peut être peux tu gagner de la place pour mettre un bureau ?

Y a t'il un accueil ?

La lab = sté ? je pense.


BZ

28/01/2012 à 20h57

En fait, j'aurais pu prévoir seulement 2 salles de soins plus grandes, mais j'ai voulu finalement isoler une troisième pièce pour en faire une salle de chirurgie.
C'est après que je me suis dit que je pourrais y inclure une panoramique ( je n'ai pas la place actuellement ).
C'est gênant ou pas ?
Quand au lab, c'est effectivement la salle de sté, entre les deux cabinets et avec un accès sur la cour qui mène au sous-sol où j'ai également 2 grands parkings.
J'aimerais les boxer et mettre le compresseur au fond mais je ne sais pas jusqu'à quelle distance on peut les éloigner des fauteuils.
Quelqu'un peut'il me renseigner à ce sujet ?


BZ

28/01/2012 à 21h01

J'ai oublié de répondre pour l'accueil : je prévois un meuble arrondi dans le coin à gauche en entrant mais pour l'instant, on travaille sans assistante.


Image001 e0kg9q - Eugenol
clemsdent

28/01/2012 à 22h31

en ce qui concerne le compresseur, ça peut être assez loin je pense.
J'ai un fauteuil à bien 10m du compresseur, et le deuxième à 20m je dirais.
Il existe bien des tuyau flexibles pour compresseurs chez casto de 25M.
Donc je pense qu'il n'y a pas de perte de pression importante avec l'éloignement, contrairement à l'aspiration par exemple.


Image001 e0kg9q - Eugenol
clemsdent

28/01/2012 à 22h48

;


Image001 e0kg9q - Eugenol
clemsdent

28/01/2012 à 22h49

sinon:
1. je trouve la salle d'attente trop grande.
2. une autre poste pour gagner de la place, c'est de ne pas faire des WC handicapés, seulement des "privés".
2. je privilégierais d'avantage d’espace pour un espace accueil, bureau
3. J'essaierais de mettre la pano toute seule dans un box 1,50 sur 2M (pour avoir travaillé dans un cabinet avec la pano au bloc).
4. je ne mettrais pas d'espace bureau dans les salle de soins, mais c'est une question d'organisation avec les assistantes.

C'est vrai que l'espace disponible pour 2 praticiens et la forme du local font forcément faire des compromis. Mais je trouve bien l'idée de la 2eme sortie.
le couloir central aussi, il n'y a pas le choix de toute façon.
bien aussi, la disposition entre zone clinique et zone publique.


Little shop of horrors brzqjx - Eugenol
chatondecarte

28/01/2012 à 22h53

Ça fait combien de m²?


Smile beach jgh0a1 - Eugenol
Céramik

29/01/2012 à 01h05

Selon le plan, 98.5 m carré.
Chez nous, c'est trop petit, même pour un seul CD !

Pour le compresseur, j'ai déjà bossé dans un cabinet au 2 étage, et le compresseur était au sous-sol.
Tuyaux rigides, et aucune perte, même avec 7 fauteuils !

Tu as un coin labo, pour les p'tit travaux ?
Stockage matos et fournitures ?

Pano dans une salle, à éviter si possible.

Coût du loyer ?

--
Céramik


Image001 e0kg9q - Eugenol
clemsdent

29/01/2012 à 10h26

je pense qu'il ne loue pas, mais qu'il achète.
Combien le M2?

ceramik, en France tu trouves des cabinets mono-praticien sans assistantes de 30M2 :-) !


BZ

29/01/2012 à 12h24

Bien vu Clemsdent,

je suis actuellement locataire dans mon cabinet et je profite donc du transfert pour acheter ce local et préparer un peu ma retraite.
Je monte pour ça une SCI qui louera le tout à ma selarl.
Je suis aussi d'accord avec toi pour la salle d'attente; je vais prévoir de reculer la première paroi ( vitrée d'ailleurs ) parallèle à la vitrine, ce qui donnera plus de place pour la future borne d'accueil.
Par contre, je ne partage pas ton opinion sur les WC handicapés. Quitte à faire quelque chose aux normes, quelles soient pour le public ou pour ses salariés, autant le faire bien. Ces 3 m2 ne sont pas une perte terrible sur l'ensemble du projet. J'en profiterais pour mettre un beau lavabo pour les patients qui viennent se laver les dents juste avant leur rendez-vous.

Concernant la pano, je peux peut-être l'isoler dans le cabinet 3 avec une entrée sur le couloir. Cela fera aussi moins de murs à plomber. Plusieurs d'entre vous m'ont déconseillé de la mettre dans une salle de soins, mais sans me dire vraiment pourquoi. Quels étaient alors les problèmes rencontrés ?

Merci aussi à toi Céramik pour tes remarques : je n'avais même pas pensé aux placards pour le rangement ! Je crois que ma salle de chirurgie est en train de se réduire, car c'est sûrement là que je trouverais de la place.

Encore deux questions :

- ou mettre l'aspiration d'aprés vous ?

- pour l'informatique, je prévois 5 prises réseau avec du RJ 45. J'ai une box sur l'ADSL ( Bouygues pour l'instant puis surement Free lors du déménagement ). Faut il un routeur et de quel type ?

Merci.


Image001 e0kg9q - Eugenol
clemsdent

29/01/2012 à 22h31

l'aspiration, tu pourrais la mettre en dessous (je n'ai pas bien compris, tu as un garage dessous? ).
ça dépend aussi si tu as une aspiration commune ou une pour chacun.
Je la mettrais la plus proche possible sans que son bruit devienne nuisible.

En ce qui concerne la question de la pano, je te parle de mon expérience: j'ai actuellement 1 salle de soins principale, et une salles de soins supplémentaire, qui me sert pour le chir, les anesthésies (pendant que je termine avec la patient sur le fauteuil 1), parfois pour les urgences.
Assez souvent, quand je fais une pano de contrôle pour le patient sortant ou entrant dans le cabinet principal, j'ai déjà quelqu'un sur mon fauteuil secondaire. Il est donc très pratique d'avoir la pano à part.
C'est encore plus vrai, si tu fais potentiellement 2 fois plus de panos (car 2 praticiens), et si ton 3eme fauteuil est potentiellement 2 fois plus utilisé pour la chir.
Maintenant si tu comptes te servir de ton 3ème fauteuil qu'une matinée par semaine pour l'implanto, le problème reste le même à une moindre mesure pour ton associé: il ne pourras pas se servir de la pano cette matinée là!


BZ

30/01/2012 à 00h10

Je pourrais pas mettre l'aspi en sous-sol dans mon box car celui-ci se trouve en fait sous la salle d'attente. Pour le compresseur, ça ira mais pour l'aspi faut que je trouve une autre solution. Peut être sous l'évier de la salle de sté ?
Je pensais prendre une aspi mobile pour la salle de chir. Est-ce fiable ?


Smile beach jgh0a1 - Eugenol
Céramik

30/01/2012 à 00h40

clemsdent écrivait:
-------------------
> je pense qu'il ne loue pas, mais qu'il achète.
> Combien le M2?
>
> ceramik, en France tu trouves des cabinets mono-praticien sans assistantes de
> 30M2 :-) !
>

30 m carré ?
C'est une roulotte ?
;-)


J'ai dessiné un peu sur ton plan, question d'ajouter du rangement.

Par contre, j'ai pas d'idée sur la salle 3.
J'aime pas la porte sur la salle 2...
La salle 1, la position de la chaise est à revoir selon moi.

Tu bosse avec AD ?
Faut gèrer l'ergonomie, la position des tabourets, des plans de travail, etc.





--
Céramik


BZ

30/01/2012 à 12h02

merci Céramik mais je trouve pas ton plan sur le message.

Pour l'instant, tout est encore modifiable donc si quelqu'un me trouve où mettre la pano en conservant une troisième salle de soins, je suis preneur.
Par contre, n'oubliez pas de tenir compte des fenêtres à gauche, qui ne sont pas modifiables dans leur position, et il y a également un poteau en béton à l'entrée du cabinet 1.

Sinon, j'ai pas d'AD pour l'instant.


BZ

30/01/2012 à 14h40

J'ai pas le logiciel qu'il faut pour intervenir directement sur le .pdf mais j'ai refait un petit dessin de ce que je prévois pour les 2 salles de soins principales.


Smile beach jgh0a1 - Eugenol
Céramik

30/01/2012 à 15h44

oups...

Je comprend pas comment bosser sans AD...
mais bon, ça doit être culturel

--
Céramik

Cabinet abc 2  y5inhw - Eugenol

BZ

30/01/2012 à 16h17

Pas mal ton idée pour le cabinet 1.
Cela permet au praticien et au patient d'avoir la vue sur le jardin.
Faut juste que je vérifie que ça passe au niveau des meubles et du bureau.
Cela rend aussi possible l'élargissement de la sté en ramenant la cloison latérale vers la gauche.


Smile beach jgh0a1 - Eugenol
Céramik

30/01/2012 à 17h57

BZ écrivait:
------------
> Pas mal ton idée pour le cabinet 1.
> Cela permet au praticien et au patient d'avoir la vue sur le jardin.
> Faut juste que je vérifie que ça passe au niveau des meubles et du bureau.
> Cela rend aussi possible l'élargissement de la sté en ramenant la cloison
> latérale vers la gauche.

Merci
Faut vérifier les dimensions, on voit mal sur le plan.

Je trouve que de placer le patient comme cela évite que le patient regarde la porte lorsque tu sors et entres dans le cabinet...

La forme du local est un peu particulière...
T'as rien trouvé de plus carré ?
Si l'édifice est en construction ,pas de modification possible sur le périmêtre ?


--
Céramik


BZ

30/01/2012 à 18h10

Je t'avoue que j'ai eu tellement de mal à trouver un bien susceptible d'être aux normes et situé pas trop loin de mon cabinet actuel, que la forme ne m'a pas paru bizarre du tout à moi.
J'étais souvent en "concurrence" avec des personnes qui achetaient pour habiter, et comme il n'y a pas grand chose à vendre dans mon secteur, certains achetaient même les locaux industriels qui auraient pu m'intéresser, et ce dès la première visite et au prix demandé!


Image001 e0kg9q - Eugenol
clemsdent

30/01/2012 à 22h35

le fauteuil 1 est definitivement mieux placé, car ni toi, ni une future assistante ont besoin de faire le tour du fauteuil pour accéder au "poste"


BZ

30/01/2012 à 23h00

Ouais.
C'est adopté cette position du fauteuil pour le cabinet 1.
Personne ne m'a répondu pour l'aspiration. Ça se met dans un meuble sous évier ?
Dans mon cabinet actuel, elle est dans un placard sans ventilation, mais c'est pas terrible. là, je pourrais peut etre prévoir une grille dans le mur sur l'extérieur.
Ça se trouve où chez vous ?


Image001 e0kg9q - Eugenol
clemsdent

30/01/2012 à 23h30

si tu veux faire une pano seule, il faut grignoter de la place autre part:
le réfectoire suffit largement pour placer une pano par exemple.

j'ai un petit doute sur le réfectoire?: au départ je pensais que c'était l'espace dédié au lavage des dents des patients, dans ce cas il suffirait une petit lave main devant les WC handicapé.
Mais je crois c'est ton espace repos? (entre les 2 WC??)


Image001 e0kg9q - Eugenol
clemsdent

30/01/2012 à 23h35

bien sur l'aspi se place dans un meuble, avec ventilation extérieure.
dépend de ton aspi, et du bruit que tu supporte. Il existe des meubles insonorisés. Sinon, un truc génial: PowerTower de Dürr, une armoire qui prend 1/1m (ou 60/60?) au sol, et ou tu as tout: aspi, compresseur, séparateur. mais assez cher.


BZ

30/01/2012 à 23h48

Bien sur que c'est mon espace repos. Tu veux pas me le supprimer quand même ?
Plus sérieusement, ça gêne en quoi les wc autour ? Y a des murs entre, non ?


12