Cookie Consent byPrivacyPolicies.comAvis sur mon plan svp - Eugenol

Avis sur mon plan svp

Dentthon

17/09/2023 à 12h06

Bonjour,

Je viens solliciter vos avis sur ce plan..
J'aimerai savoir s'il y a des erreurs dans la conception...

Je ne sais pas :
-si je dois pas inverser les vestiaires/repos à droite par l'accueil ainsi j'obtiens une grande salle de repos avec des vestiaires homme et femmes séparés..
- si ma sté est suffisamment centralisée...

Nb: La salle de soins de 32 M2 sera aménagé en un bloc avec sas plus tard..



Vos critiques sont les bienvenues.. Merci..

Lszahandzm7bnq5pbvxvi020onyn - Eugenol

8tercecn7hisbbqbde2nil4nyxrw - Eugenol
Tournsol

17/09/2023 à 12h21

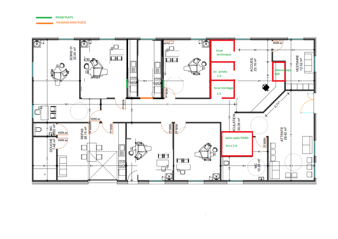
personnellement je trouve la sté petite si elle doit gérer 5 salles de soins. Je supprimerai les 2 portes (reliant salle soins 2 et 3) pour gagner en surface de travail
Globalement c'est super bien agencé

Pas de salle prothèse ? genre pour mettre un peu de matos comme une sableuse, thermoformeuse, taille platre; imprimante 3D, usineuse, etc


Jf35

17/09/2023 à 12h21

Ta salle technique où sera je pense ton compresseur et aspi sera trop près des oreilles de ton assistante de l’accueil.
Et le mur entre accueil et salle d’attente en trop, c bien de voir ce qui se passe


6szjws718sv1jksw54v4mpj3a6cu - Eugenol
vulpi

17/09/2023 à 12h33

Une salle pour baie de brassage.
Toilettes pro hors vu des patients c'est sympa, mais j'aime pas au vu de la salle détente pro... pudeur personnelle.
Local à balais.


P2eqdh3csim6s7nb09ktdq3e7ev8 - Eugenol
barbabapat

17/09/2023 à 12h44

Salle de stockage pour les modèles, les dossiers , des consommables, ........

Normalement séparer le compresseur de l'aspiration avec possibilité pour l'aspiration d'envoyer l'air vers l'extérieur avec un filtrage en fonction du voisinage.

Prévoir une stérile qui permet de séparer le propre du sale.

Chauffage, eau chaude sanitaire, informatique pour une baie de serveur????

Question sur une seconde entrée pour le personnel et les livraisons si possible.


6szjws718sv1jksw54v4mpj3a6cu - Eugenol
vulpi

17/09/2023 à 12h57

À voir avec l'archi, il faut un nombre d'issues de secours en rapport avec le nombre de personnes maxi (tout fonctionnant en même temps). Et à mon avis si ça s'applique à ton cas il en faudrait une en plus de l'entrée.
Idem portes coupe feu.
Chez nous on a 840 M2, 3 issues de secours et quelques coupes feu.


Ylfwcw979cz1jnx9gfqeaxndiuzk - Eugenol
Algi

17/09/2023 à 13h02

La place pour une salle panoramique cône beam?

Peut être envisager de placer la salle d'attente en vue directe sur la sté mais pas pratique au vu de ton agencement....

Sinon ça me paraît pas trop mal


--

On a toujours le choix mais entre quoi et quoi?
Vas-y boulégue et l'avenir te le dira!


Et7jtaj0pdi18gzjlxjiamlx15gs - Eugenol
Prunelles

17/09/2023 à 13h02

Déjà félicitations pour ton projet !

Pour ma part je trouve qu’il y a énormément de place perdue a l’accueil.
Ensuite pourquoi faire 1 seule grande salle d’attente et pas plusieures petites ?
Je centraliserais également la PANO avec une « alcôve » pour ne pas gêner la circulation dans le couloir.
Faire attention à la réglementation autour des WC homme/femme; des vestiaires hommes/femmes et des douches hommes/femmes !
Ensuite les vestiaires, les WC privés et la salle repos ne devraient faire qu’un seul bloc, avec éventuellement une entrée séparée.

Dernière remarque, mais c’est subjectif et sa dépend de la « vue » autour de ton bâtiment ; mais j’orienterais les fauteuils de façon a ne pas avoir la fenêtre dans le dos. C’est toujours plaisant pour tous le monde d’avoir une vue vers le ciel/l’extérieur surtout si tu peux mettre des baies vitrées.

NB : Pourquoi tu as une porte de garage dans ta salle de repos ?


6szjws718sv1jksw54v4mpj3a6cu - Eugenol
vulpi

17/09/2023 à 13h10

vulpi écrivait:
-----
> Une salle pour baie de brassage.
> Toilettes pro hors vu des patients c'est sympa, mais j'aime pas au vu de la
> salle détente pro... pudeur personnelle.
> Local à balais.
Local tableau électrique.
Tu chauffes comment, bien calculer l'emplacement et nombre des Vmc et arrivées chaufferie/clim avoir la clim au dessus de la tête c'est insupportable pour toi comme tes employés ou patients.
Bien réfléchir aux câblages électriques et informatique (sa déambulation et les possibilités de reintervention, 😁 j'ai un RJ45 défectueux qui passe sous le fauteuil, sous la dalle de béton... bah 🤔🤔😅).
Les murs recevant les la de cônes radio doivent être renforcés en conséquence.
J'ai pris l'option de séparer le bureau de la salle de soins, plus hygiénique et probablement plus dans la norme, en plus l'AD peut préparer pendant que tu expliques si besoin.


Ylfwcw979cz1jnx9gfqeaxndiuzk - Eugenol
Algi

17/09/2023 à 13h57

Est il vraiment nécessaire de prévoir un bureau dans chaque cab?
A ce moment là tu gagnes de la place pour la ste et une éventuelle salle imagerie....

--

On a toujours le choix mais entre quoi et quoi?
Vas-y boulégue et l'avenir te le dira!


Dentthon

17/09/2023 à 13h58

Merci pour vos réponses et conseils précieux.

Je vais essayer d'apporter quelques élements de réponses.
Dans ce cabinet je prévois d'être à 4 confrères en tout au maximum!
En tout il y a 3 entrées et sorties, donc au niveau des normes incendie etc on est bon. La 3è sortie est une porte de garage qui sera aménagée en une porte d'entrée pour l'équipe soignante.

Le WC privé destiné aux assistantes ou aux femmes de l'équipe peut être inversé par la salle pano en modifiant légèrement les surfaces .

C'est un local au RDC, ayant un toit fermette, je peux donc aménager un petit local pour mettre l'aspiration et le compresseur de façon à ne pas mélanger l'air aspiré et recapté.

J'ai voulu avoir un cabinet aéré avec un bel espace à l'accueil et pour la salle d'attente en open-space.. mais l'idée d'avoir une 2è salle de soins est pas mal aussi..

İl me manquera une salle dasri, un coin plâtre..

Mes salles de soins feront 4x5 pour éventuellement prévoir un petit bureau pour imprimer devis, ordo etc .

Le chauffage est assuré par de l'aerothermie avec des cassettes réversibles au plafond

J'ai prévu 2 portes entre la sté et les 2 salles de soins mais je peux aussi faire une sorte de passe-plat..

Ee3b2i7eo59753tyqkt50h003501 - Eugenol

Et7jtaj0pdi18gzjlxjiamlx15gs - Eugenol
Prunelles

17/09/2023 à 14h17

Dentthon écrivait:
--------
> Dans ce cabinet je prévois d'être à 4 confrères en tout au maximum!

Tu es seul à monter le projet ?


Dentthon

17/09/2023 à 14h27

Oui. Je suis seul.


Utilisateur banni

17/09/2023 à 14h58

Prunelles écrivait:
---------
> Dernière remarque, mais c’est subjectif et sa dépend de la « vue » autour de ton
> bâtiment ; mais j’orienterais les fauteuils de façon a ne pas avoir la fenêtre
> dans le dos. C’est toujours plaisant pour tous le monde d’avoir une vue vers le
> ciel/l’extérieur surtout si tu peux mettre des baies vitrées.

il a raison prunelles pour l'orientation des fauteuils. Ca fait du bien de jeter un coup d'oeil dehors. C'est agréable et reposant, surtout quand on a les yeux rivés sur la crasse des gens le reste du temps.
Prévoir la vidéosurveillance dans le cas où t'as un petit ange qui vient te rendre visite pour te dire des gentillesses dans le creux de l'oreille .


Hok 1b hgd3rj - Eugenol
Hokusai

17/09/2023 à 15h07

pers ce que j aime pas dans ce plan c est la ste avec l impossibilité de mettre en place une ste salle-humide/propre seche avec marche en avant qui donne sur un stock...


Et7jtaj0pdi18gzjlxjiamlx15gs - Eugenol
Prunelles

17/09/2023 à 17h48

Dentthon écrivait:
--------
> Oui. Je suis seul.

Rassure nous, tu seras rejoint rapidement par d'autres confrères ?


Dentthon

17/09/2023 à 18h54

Prunelles écrivait:
---------
> Dentthon écrivait:
> --------
> > Oui. Je suis seul.
>
> Rassure nous, tu seras rejoint rapidement par d'autres confrères ?


Ouiiii, mais 1 collaborateur en vue de association puis on verra petit à petit..
C est effectivement un gros cabinet pour moi tout seul..


Dentthon

17/09/2023 à 21h04

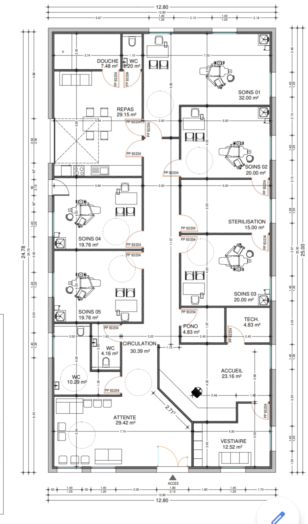
Vous préférez plutôt comme ça?

Pzexa8uifue7zquam4ipxk849kb4 - Eugenol

Vw campersurfvan bmnk1q - Eugenol
enlaye

18/09/2023 à 07h04

Il est beau ton projet 1901 :-)


Dentthon

18/09/2023 à 07h19

enlaye écrivait:
------
> Il est beau ton projet 1901 :-)

C'est vrai, on pourrait en faire un centre dentaire .. lol.. il faut que je fasse une extension alors.. 😂


P2eqdh3csim6s7nb09ktdq3e7ev8 - Eugenol
barbabapat

18/09/2023 à 08h43

Dentthon écrivait:
--------
> Vous préférez plutôt comme ça?

Suppression de la fenêtre de la stérile ce qui te permet de récupérer le mur et de faire une structure en U, avec une paillasse "sale" ou humide, le mur avec les autoclaves et l'autre coté avec le matériel propre.

Voir tes circulations sachant que tu va avoir les patients qui les empruntent et les assistantes qui débarrassent en même temps.


Et7jtaj0pdi18gzjlxjiamlx15gs - Eugenol
Prunelles

18/09/2023 à 09h02

barbabapat écrivait:
----------
> Voir tes circulations sachant que tu va avoir les patients qui les empruntent et les assistantes qui débarrassent en même temps.

+1000
Pour chaque personne (CD, AD, Patients) il faut que tu visualises et traces sur ton plan les chemins de ces derniers.
Sachant qu'a 4 CD, va y'avoir du monde qui court dans tous les sens.

Il te faut donc les trajets pour :
- les patients qui entrent dans le cabinet : accueil > salle d'attente ( > WC ) > salle de soin
- les patients qui sortent du cabinet : salle de soin > accueil
NB : Avec 4 CD en activité, il faut un trajet distinct pour les 4 patients
- les CD (ou AD) qui accueillent les patients : salle de soin > salle d'attente > salle de soin
NB : c'est ici l'intérêt d'avoir plusieurs salles d'attentes. Ca limite ces "temps morts" ou il faut chercher ton patient à l'autre bout du cab.
J'en laisserai une à la place de ta grande salle d'attente et une seconde plus petite en face de la sté.
Je placerai également la PANO à coté de cette seconde salle de d'attente (au milieu du cab) et j'agrandirai la sté.
- les pano : salle de soin > pano > salle de soin
- les DM sales : salle de soin > sté sale > sté propre
- les DM propres : sté propre ( > stockage ) > salle de soin
NB : tes passe-plats perturbent le flux des DM dans la sté.
Garde la porte de ta sté (à cause du bruit) et idéalement il faut en mettre deux (entrée et sortie).
- les DASRI : salle de soin + sté > zone de stockage

Tu peux aussi rajouter les trajets pour les pauses café/WC des CD et des AD.
Dans ton dernier plan les patients risquent d'être accueillis par l'AD qui sort des WC privés !

Il faut que ces flux se croisent le moins possible et ne bouchonnent pas au même endroit.


Utilisateur banni

18/09/2023 à 09h32

Est-ce que ton projet n’est pas un peu trop grand en sachant que pour l’instant tu n’as qu’une personne qui va venir en collaboration …. ? tu n’es absolument pas certain que d’autres viendront s’installer dans ton cabinet .
Attention à ne pas trop dilapider ton argent. Macron a tellement arrosé tout le monde pendant le Covid et créé une fausse croissance basée sur la dilapidation de l’argent public, qu’aujourd’hui les gens ont de plus en plus mal . Et ça va se ressentir même à notre niveau . Ils ont déjà du mal pour faire le plein et leurs courses … et les dents ça passe derrière tout ça.


6szjws718sv1jksw54v4mpj3a6cu - Eugenol
vulpi

18/09/2023 à 10h03

C'est fortement dépendant du lieu d'installation.


Dentthon

18/09/2023 à 10h18

Oui, tu as raison..
Mais il faut que je parte d'un plan évolutif..
J'amenagerai uniquement 2 salles de soins.. pour les autres, l'infrastructure sera prête pour les gros travaux d'elec, plomberie ,cloisons etc puis on verra..

Pour le côté économique de la chose, avec le rac 0 qu'on soit dans un coin à haut revenu ou dans une région rurale pauvre, les tarifs sont les mêmes.. et c'est remboursé..donc je me fais pas de souci

Nanard écrivait:
-------
> Est-ce que ton projet n’est pas un peu trop grand en sachant que pour l’instant
> tu n’as qu’une personne qui va venir en collaboration …. ? tu n’es absolument
> pas certain que d’autres viendront s’installer dans ton cabinet .
> Attention à ne pas trop dilapider ton argent. Macron a tellement arrosé tout le
> monde pendant le Covid et créé une fausse croissance basée sur la dilapidation
> de l’argent public, qu’aujourd’hui les gens ont de plus en plus mal . Et ça va
> se ressentir même à notre niveau . Ils ont déjà du mal pour faire le plein et
> leurs courses … et les dents ça passe derrière tout ça.


12