Cookie Consent byPrivacyPolicies.comfil rouge création de cabinet - Eugenol

fil rouge création de cabinet

Dos02 qpcfgi - Eugenol
Rick

25/09/2007 à 15h55

Le sens d'ouverture des portes me semble non conventionnel, sur tracée 1 téléscopage à l'ouverture simultanée des 2.


Wra300x300 gotue6 - Eugenol
hop

25/09/2007 à 16h26

faut faire péter les couleurs.
parfois, les tons sont gris en hivers en Bretagne nord:

Carototo kitsch zbz4yp - Eugenol

carototo

25/09/2007 à 22h18

bonsoir

pour les banques d'acceuil, impossible de les récupérer, elle étaient vraiment trop moches même si la photo peut fair un peu illusion
de plus, pas adaptées aux normes.

pour les portes, là encore c'est un pb de perspective du à la photo.

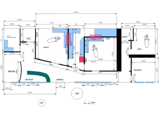
voici le plan

à plus tard

Nouveau plan3 kosqht - Eugenol

carototo

25/09/2007 à 22h21

sur le plan , on a modifiè les dimensions de la pano, le local fera 1m50/2m
de même les wc font 2m/2m


carototo

25/09/2007 à 22h21

une vue 3d approximative

Plan3d1 cngpn7 - Eugenol

carototo

25/09/2007 à 22h23

une autre vue 3d

Plan jtzzy0 - Eugenol

jayetche1

25/09/2007 à 22h34

salut rototo et merci pour ce post c'est une excellente idee
si je peux me permettre je trouve dommage d'isoler ta ste de ta salle chir
ne peux tu pas placer ta salle radio pano ailleurs (vers le bureaux par exemple)
et faire une connection ste salle chir
ca evitera a tes assistante de se balader avec tous le matos ensenglanté!
c est juste une suggestion


carototo

25/09/2007 à 23h04

En effet, c'est dommmage, mais impossible chez nous car:
-la chir est située dans le coffre fort, donc impossible de faire une ouverture dans le mur.
-cette salle de soin est pour l'instant "en attente" et ne sea pas exploitée tout de suite
- comme elle sera d'utilisation ponctuelle, on devrait s'en sortir pour faire transiter le matos sale dans une desserte mobile.


Image19 iebot6 - Eugenol
athos

26/09/2007 à 11h04

t'as beaucoup bossé, c'est bien conçu, je ne vois pas de vestiaire (pour le personnel feminin c'est genant) ni de toilettes privées, n'est ce pas dommage? quelles sont les obligations en la matière? ce serait dommage de se faire accrocher un jour pour ça apres tant de travail et de dépenses.


LdL

26/09/2007 à 11h32

Un vestiaire vitré j'espère !


incisive

26/09/2007 à 11h35

Le vestiaire c'est effectivement obligatoire dès qu'il y a du personnel, un pour le personnel féminin, et un pour le personnel masculin. Maintenant Carototo le jour de l'inspection peut bien décider que le vestiaire est dans le local technique ou dans le bureau...pour les toilettes, pas d'obligation d'en avoir de privé. Qd on a du personnel il me semble que là il faut en avoir un privé, et pareil un pour les filles, un pour les garçons. Donc si on a une assistante et UN secrétaire, et ben faut les toilettes patient aux normes handicapées, des toilettes privés pour l'assistante et la femme de Carototo et des toilettes privées pour le secrétaire et Carototo.


Image19 iebot6 - Eugenol
athos

26/09/2007 à 11h49

va criser notre caroto...mais bon, autant prévoir avant...


Mon avatar msn jgkit1 - Eugenol
Ewing

26/09/2007 à 17h44

Achète ça à l'ADF association (que 5€)
Guide d’installation des cabinets dentaires -
Aspects réglementaires et Conseils

http://www.adf.asso.fr/cfm/site/dossier/web.cfm?rubrique=49

En effet, tu envisages la construction d'un ERP (Etablissement Recevant du Public)
Notice de sécurité,Notice d'accessibilité pour PMR (Personnes à Mobilité Réduite) etc...
Il faut missioner un bureau de contrôle style APAVE, VERITAS ...pour la solidité, la sécurité,l'accessibilité aux PMR.
Viendra après "l'agrément Rx".
Il faut que tu essaies de négocier un pack avec eux.

Pour les chiottes, il a raison. Si personnel mixte, il faut 2 chiottes H et F. Ensuite il faut un chiotte pour le public accessible aux PMR etc...

L'épaisseur de tes cloisons en équivalant plomb...


BONNE CHANCE !!!!!!


Image19 iebot6 - Eugenol
athos

26/09/2007 à 18h07

là y va criser c'est sur


Flaschcode adresse site cabinet  bsizag - Eugenol
dentissimo

26/09/2007 à 21h36

en voyant les premières photos... je ne savais pas qu'il y avait des tsunamis en bretagne...


carototo

26/09/2007 à 22h50

salut à tous
pour le vestiaire /wc, no problemo, on a un étage complet qu'on va aménager en "appart de repos, avec salle de bain,et coin cuisine.
les parois sont toutes en carreau de platre de 10cm
pour la circualtion, on a 150 cm partout, on fait une rampe d'accès avec les paliers qui vont bien et tout et tout.


arno

27/09/2007 à 12h17

salut,
bonne idée de nous faire partager cette création, d'autant que je commence de mon côté à chercher un local pour agrandir le cab.
peux tu nous détailler l'aspect financier: achat, travaux...
merci
arno


alhoun

27/09/2007 à 18h43

arno Ecrivait:

> peux tu nous détailler l'aspect financier: achat,
> travaux...



comment, ce n'est pas la sécu qui paye?
à lire certains, c'est pourtant l'impression que ça donne.


carototo

30/09/2007 à 15h40

salut a tous

voilà le mur de la salle d'attente, qui vient d'être sablé.
demain, démontage de la chaudière
mardi, arrivée des carreaux de plâtre.

a+

Salle attente zxkqq5 - Eugenol

n.

30/09/2007 à 23h58

bienvenus à vous dans les cotes d'armor,

ne pouviez vous pas percer des fenetres pour eclairer vos salles de soins ?


carototo

04/10/2007 à 21h58

ca y est , c'est parti, l'entreprise a attaqué ce matin avec 10 jours d'avance sur le calendrier prévu.

premières victimes:
en facade, les marches ont dégagé pour pemettre la mise en place de la rampe d'accès.

puis cet après midi, livraison des carreaux de platre pour les cloisons ( 2 tonnes de matos)

j'enverrrais des photos la semaine prochaine

à plus tard

Exterieur4 fvdbi6 - Eugenol
Exterieur5 kxxigt - Eugenol
Carreaux1 hlrtfm - Eugenol
Carreaux2 qwn6wj - Eugenol

Aa

05/10/2007 à 18h52

Purée comment elle va tuer ta salle d'attente, j'aime trop ton mur!!! Trop roots!


Beb

05/10/2007 à 19h10

Ca parle à l'inconscient une salle d'attente comme ça.. Ici on fait pas du boulot de lopette, on aime la solidité du granit breton!
Beau boulot en tout cas :)


carototo

08/10/2007 à 14h32

voilà, le montage des cloisons a commencéce matin.

répartis dans le local, 10 tonnes de carreaux de plâtre!!!

je renvoie des photos ce soir, car ca monte assez vite.

Cloisons1 vvonyn - Eugenol
Cloisons2 hbf0lg - Eugenol

Squash u44zd8 - Eugenol
steph

08/10/2007 à 14h59

J'aime bien le côté brut, pas fini.


123...