Cookie Consent byPrivacyPolicies.comFil rouge création d'un cabinet - Eugenol

Fil rouge création d'un cabinet

yoye

04/09/2011 à 23h27

Bonsoir à tous, je vous propose de me suivre dans la construction d'un cabinet dentaire et la création de l'activité.
Le projet est le suivant : achat d'un terrain nu de 1000 mètres carrés, et sur celui ci création d'un local professionnel.
La superficie du cabinet est 200 mètres carrés environ dont une partie ne sera pas utilisée de suite bien sur mais plutot que de modifier plus tard...
Les photos seront plus explicites...

Vue du dessus avec modif zcisxe - Eugenol

yoye

04/09/2011 à 23h40

J'ai un peu attendu l'avancée des travaux pour pas que ça dure trop longtemps..
La maison est hors d'eau hors d'air depuis la semaine dernière et les menuiseries extérieures posées ces jours , le placo débute semaine prochaine.
Il faut que je puisse bosser janvier ou février au plus tard.
Il s'agit d'une installation en zone rurale , petit village de 8000 habitants

P1030001 jop7yf - Eugenol
P1040720 m7ezuv - Eugenol
P1020570 odleg1 - Eugenol
P1020573 xodsxe - Eugenol
P1040710 kgj1hq - Eugenol

yoye

04/09/2011 à 23h52

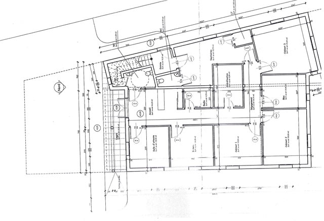
Le cabinet est au RDC.
A l'étage il y a une partie habitation.

Plan d finitif avec c tes   dr boc4lu - Eugenol

Smile beach jgh0a1 - Eugenol
Céramik

05/09/2011 à 01h40

Sympa, montre nous la suite et bon succès

--
Céramik


Img 1145 bsxzst - Eugenol
jeffvest

05/09/2011 à 01h48

Bonne chance et bon courage


marco17

05/09/2011 à 11h14

bon courage !


G-P

05/09/2011 à 13h11

Bonne chance pour ton projet :)


yoye

06/09/2011 à 02h05

Merci pour vos encouragements.
Ils sont pas de trop parce que c'est du boulot...
Quelques photos du jour.
En attendant la réunion de chantier de mercredi ou on planifie l'intérieur.

P1050017 pfhcqm - Eugenol
P1050012 dst7sy - Eugenol
P1050014 obgecn - Eugenol

Smile beach jgh0a1 - Eugenol
Céramik

06/09/2011 à 02h22

yoye écrivait:
--------------
> Merci pour vos encouragements.
> Ils sont pas de trop parce que c'est du boulot...
> Quelques photos du jour.
> En attendant la réunion de chantier de mercredi ou on planifie l'intérieur.


C'est en pleine jungle ? (dernière photo )

;-)


--
Céramik


yoye

06/09/2011 à 11h13

Non non céramik, c'est pas citadin citadin mais on est pas non plus à deux jours de marche du premier supermarché...
Mais je reconnais que la photo est trompeuse !!
Je suis à moins d'un km de "l'hypercentre!" .


olrik

06/09/2011 à 23h44

Beau projet ;-)) Je te souhaite bcp de réussite.


Smile beach jgh0a1 - Eugenol
Céramik

07/09/2011 à 02h10

yoye écrivait:
--------------
> Non non céramik, c'est pas citadin citadin mais on est pas non plus à deux jours
> de marche du premier supermarché...
> Mais je reconnais que la photo est trompeuse !!
> Je suis à moins d'un km de "l'hypercentre!" .

1/2 jour de marche au travers la foret...
tu confirmes alors qu'il n'y a pas de route autour de ton cabinet !

;-))


--
Céramik


chirdent26

08/09/2011 à 11h31

Bonjour
Pourquoi un étage et quel est le budget prévisionnel ?
Le plancher du cab est-il sur vide sanitaire et prévois-tu une salle radio de bonne dimension si tu prévois une cone beam car ma pcr m'a parlé d'un changement de normes pour les radios cone beam?


yoye

08/09/2011 à 14h28

L'étage en fait c'est pour mon logement. L'appartement a la meme superficie que le bas. C'est une décision qui a demandé réflexion avec les avantages et les inconvénients d'habiter sur place, nous avons essayé de concevoir l'ensemble de façon fonctionelle et aussi séparer correctement les parties pro et perso pour que l'un n'empiète pas sur l'autre.( entrée sortie parking )
Le gros avantage est financier, l'économie entre une eventuelle location ou un achat de bien pour le personnel est importante.
Dans un certain nombre d'années si tout ça tourne bien nous pourrons envisager autre chose.
Pour la salle radio les dimensions sont celles d'une pano standard , je n'ai pas entendu parler d'éventuelles modifications de normes. Pour l'instant je n'ai de toute façon pas l'intention d'acheter un cone bean. J'espère que non parce que les modifications eventuelles sont minimes parce que avec le cout global de l'aménagement d'une salle pano ( ne serait ce que plomber les murs ) je ne le referai pas tout de suite...


yoye

08/09/2011 à 14h32

j'ai oublié : il y a un vide sanitaire de 80 cm.
Pour le budget prévisionnel la première année avec un CA de 200 ke j'aurai de quoi me reverser un petit ( tout petit )salaire
remboursement pret construction 3500 / mois
Remboursement matériel dentaire environ 1600 /mois
Salaire assistante 24000 / an ( charges incluses )
Divers...


roucoulou

08/09/2011 à 16h39

J'aime bien l'agencement que tu as choisi.
Je crois que je vais m'en inspirer pour mon futur cabinet.


yoye

08/09/2011 à 17h03

roucoulou écrivait:
-------------------
> J'aime bien l'agencement que tu as choisi.
> Je crois que je vais m'en inspirer pour mon futur cabinet.


Tant mieux, c'est fait pour.
Si certains ont des conseils des astuces ou des erreurs que je suis encore à temps de modifier n'hésitez pas.


Img 9301 q0yyqn - Eugenol
Art-dent

08/09/2011 à 19h29

Et intervertir le bloc avec la sté?

ce qui permettrait :
Une sté un peu plus grande (3 salles de soins tout de même)
Accès direct à la sté pour 2 salles de soins (évite qu'un patient croise le matériel souillé dans un espace réduit comme un couloir
Ajouter une fenêtre à la sté (sympa pour le personnel qui va y passer du temps)
Ça ne changera rien au bloc qui restera sans fenêtres


--


yoye

10/09/2011 à 00h05

Oui on aurait pu envisager comme ça. J' ai certainement du y penser au moment de faire les plans et puis finalement j'ai opté pour cette solution.
Je suis pas particulièrement partisan d'une communication entre cabinet et sté directe ou avec une ouverture dans le mur dans ce cas parce j'avais choisi une implantation du fauteuil dans un sens en fonction de critères perso et une porte ou ouverture aurait obligé à plomber des cloisons et portes qui ne le sont pas dans ce cas et au vu du prix du " plombage " mur et porte c'est une dépense dont je me passe.


chirdent26

14/09/2011 à 16h49

Qu'as-tu opté niveau énergétique? On déconseille le plancher chauffant qui empêche des changements sur les adductions dans les salles de soin .Je suppose que tu as bien pris en compte l'accessibilité ERP5. As-tu pensé à une salle d'hygiène au cas où les hygiénistes seraient autorisés un jour?


yoye

14/09/2011 à 17h44

chirdent26 écrivait:
--------------------
> Qu'as-tu opté niveau énergétique? On déconseille le plancher chauffant qui
> empêche des changements sur les adductions dans les salles de soin .Je suppose
> que tu as bien pris en compte l'accessibilité ERP5. As-tu pensé à une salle
> d'hygiène au cas où les hygiénistes seraient autorisés un jour?



Comme précisé plus haut c'est un système d'aérothermie réversible ( pompe à chaleur ) pour chauffage et clim , pas de chauffage au sol .
Je me posais la question de faire du gainable plutot que des splits mais surcout non négligeable ... Avec en contrepartie des avantages ( esthétique et meilleure répartiton parait il de l'air qu'avec les spilts) mais on est pas loin du double de prix.
Pour l'accés aux personnes à mobilité réduite les portes sont en 93 , le couloir fait 1,1 mètre et il ya la possibilité de faire un demi tour avec un fauteuil au fond du couloir et dans les toilettes et dans un des cabinets.
Pour l'instant seul un des cabinets sera fonctionnel avec le bloc ; les branchements sont prévus dans les deux autres en attendant un confrère associé ou collaborateur une fois le moment opportun ou un hygiéniste.


Le plaquiste a attaqué , y a toujours des soucis avec plein de petits détails c'est un boulot de dingue...


chirdent26

15/09/2011 à 11h49

Tu sembles tout gérer , tu n'as pas de maître d'oeuvre spécialisé?


yoye

15/09/2011 à 15h17

chirdent26 écrivait:
--------------------
> Tu sembles tout gérer , tu n'as pas de maître d'oeuvre spécialisé?

C'est vrai que je gère presque tout. Je me suis fait les plans qui ont été validé par un archi qui m'a permis de déposer le permis de cosntruire mais l'économie est trés importante.
Je n'ai pas de maitre d'oeuvre mais un entrepreneur trés sérieux et aussi un fournisseur de matériel dentaire trés fiable et hyper sérieux qui m'aident bien.
Sinon j'ai démarché moi meme les corps de métier et essaie de faire que tout avance le mieux possible.

C'est comme je le disais pas mal de travail mais ( je me répète ) l'économie est énorme ( il suffit de calculer 7 ou 8 % que prend un archi pour tout suivre ca fait un petit billet !!)


Toucan3 dhuzb4 - Eugenol
Doolin

20/09/2011 à 19h37

Bonjour, vu ton implication je pense que tu as déjà réglé la question des revêtements de sol.Etant moi aussi en phase de réalisation d'un cabinet dans un immeuble en construction j'aimerais bien connaitre tes choix:PVC, carrelage, stratifié où, dans quelles pièces et quelle qualité...
Merci


yoye

20/09/2011 à 22h05

Dans le bloc c'est un sol souple avec remontée de plinthe 10 cm , du classique.
Pour le reste du cabinet j'ai opté pour du carrelage meme dans les cabinets ; en effet le revetement souple je trouvais que ça vieillissait pas bien.
Donc carrelage grés céram que j'ai testé , un plutot chaleureux dans l'entrée et bureau et salle d'attente et pour cabinets et salle de sté un carrelage plus clair plus " clinique" .
Ils seront séparés dans le couloir par une porte automatique style " sas" qui séparera une partie accueil chaleureuse d'une partie clinique plus " blanche"
Je vous posterai les photos rapidement .